The Condo Mania Team
MLS: 6995015 $257,000
2 Bedrooms with 2 Baths834 E FOUNTAIN STREET 4#4
MESA AZ 85203MLS: 6995015
Status: ACTIVE
List Price: $257,000
Price per SQFT: $223
Square Footage: 11522 Bedrooms
2 Baths
Year Built: 1981
Zip Code: 85203
Listing Remarks
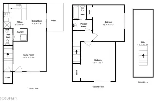
Welcome to this beautiful 2 bedroom townhome in Mesa that features upgraded wood laminate flooring throughout including the stairs. No carpet! You'll love the elegant wood French sliding patio door that leads to a HUGE enclosed private backyard with plenty of room for entertaining. The newer dual pane windows ensure that the interior of the home stays quiet. This townhome has a ton of extra storage spaces including a large closet just inside the front door, a large storage closet in the backyard, and a huge storage area in the attic which can be accessed using the brand new drop-down stairs. The upstairs bedrooms feature vaulted ceilings. The laundry and pantry are located next to the kitchen. Easy access to shopping, dining, entertainment, and the freeway. Check out the 3D Virtual Tour.
Address: 834 E FOUNTAIN STREET 4#4 MESA AZ 85203
ARMLS MARK DINGEMAN of MY HOME GROUP REAL ESTATE
Condo Mania Agent
Mary Ann Kren
Homesmart
Real Estate Agent
Phone: 480-221-4437
Request More Information
Listing Details
STATUS: Active PROPERTY TYPE: Residential PROPERTY SUB TYPE: Townhouse LISTING CONTRACT DATE: 2026-03-07 BEDROOMS: 2 BATHROOMS: 1.5 LIVING AREA SQ FT: 1152 LIVING AREA SOURCE: Assessor YEAR BUILT: 1981 TAXES: $533 HOA/MGMT CO: Villas De La Fuente HOA/MGMT PHONE: 480-908-2250 HOA FEES FREQUENCY: Monthly HOA FEES: $300 HOA INCLUDES: Roof Repair, Insurance, Maintenance Grounds, Front Yard Maint, Roof Replacement, Maintenance Exterior APPLIANCES INCLUDED: Dryer, Washer, Refrigerator, Dishwasher, Disposal, Electric Range, Electric Oven BUILDER NAME: Unknown CONSTRUCTION: Stucco, Wood Frame EXTERIOR FEATURES: Storage FLOORING: Laminate, Wood HEATING: Heat Pump, Forced Air, Electric COOLING: Central Air, Ceiling Fan(s) INTERIOR FEATURES: High Speed Internet, Upstairs, Breakfast Bar, Vaulted Ceiling(s), Pantry, Bidet, Full Bth Master Bdrm, Laminate Counters LAUNDRY FEATURES: Inside LOT FEATURES: Gravel/Stone Front, Gravel/Stone Back # GARAGE SPACES: 0 # CARPORT SPACES: 1 PARKING FEATURES: Detached Carport, Assigned COMMON WALLS: 1 Common Wall, End Unit ROOF: Tile, Built-Up STORIES TOTAL: 2 LEGAL DESCRIPTION: LOT 9 VILLAS DE LA FUENTE MCR LISTING AGENT: MARK DINGEMAN LISTING OFFICE: MY HOME GROUP REAL ESTATE LISTING CONTACT: 480-365-8865
Estimated Monthly Payments
List Price: $257,000 20% Down Payment: $51,400 Loan Amount: $205,600 Loan Type: 30 Year Fixed Interest Rate: 6.5 % Monthly Payment: $1,300 Estimate does not include taxes, fees, insurance.
Request More Information
Property Location: 834 E FOUNTAIN STREET 4#4 MESA AZ 85203
This Listing
Active Listings Nearby
Condo Mania Agent
Angela Covey
Homesmart
Real Estate Agent
Phone: 602-677-9038
The Fair Housing Act prohibits discrimination in housing based on color, race, religion, national origin, sex, familial status, or disability.
ARMLS Logo indicates a property listed by a real estate brokerage other than Homesmart. All information should be verified by the recipient and none is guaranteed as accurate by ARMLS. Based on inform54. Arizona Regional Multiple Listing Service, Inc. All rights reserved.
Copyright © 2025 Arizona Regional Multiple Listing Service, Inc. All rights reserved.
Information Deemed Reliable But Not Guaranteed. The information being provided is for consumer's personal, non-commercial use and may not be used for any purpose other than to identify prospective properties consumers may be interested in purchasing. This information, including square footage, while not guaranteed, has been acquired from sources believed to be reliable.
Last Updated: 2026-03-07 10:35:09
Tempe Condo Mania







