The Condo Mania Team
MLS: 7006565 $423,190
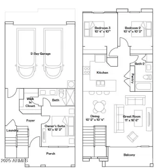
3 Bedrooms with 2 Baths8149 E PETUNIA AVENUE 1068#1068
MESA AZ 85212MLS: 7006565
Status: ACTIVE
List Price: $423,190
Price per SQFT: $323
Square Footage: 13123 Bedrooms
2 Baths
Year Built: 2026
Zip Code: 85212
Listing Remarks
Seller will provide a credit towards a rate buydown and closing costs with preferred lender. Ask us how to save thousands over the life of your loan. Hawes Crossing is a new community in Mesa, AZ with proximity to great local shopping, dining, and entertainment. Residents of this vibrant community enjoy onsite amenities such as a swimming pool, barbecue and picnic areas, basketball court, pickleball courts, playgrounds, and more--perfect for all ages to enjoy. This home comes fully equipped with all brand-new stainless steel kitchen appliances and is complete with 7x22 tile flooring, beautiful quartz countertops, and modern maple linen cabinetry, thoughtfully crafted for comfort and function. Photos are of a model home. A copy of the public report is available on the ADREs website.
Address: 8149 E PETUNIA AVENUE 1068#1068 MESA AZ 85212
ARMLS JESSICA D DETTMAN of LENNAR SALES CORP
Community: HAWES CROSSING VILLAGE ... Listing 1 of 3
First -- Next -- Previous -- Last
Condo Mania Agent
Mary Ann Kren
Homesmart
Real Estate Agent
Phone: 480-221-4437
Request More Information
Listing Details
STATUS: Active PROPERTY TYPE: Residential PROPERTY SUB TYPE: Townhouse LISTING CONTRACT DATE: 2026-03-31 BEDROOMS: 3 LIVING AREA SQ FT: 1312 LIVING AREA SOURCE: Builder YEAR BUILT: 2026 TAXES: $41 HOA/MGMT CO: Associated Asset Mgt HOA/MGMT PHONE: 623-487-6822 HOA FEES FREQUENCY: Monthly HOA FEES: $288 HOA INCLUDES: Maintenance Grounds, Front Yard Maint COMMUNITY FEATURES: Pool, Pickleball, Community Spa, Playground, Biking/Walking Path APPLIANCES INCLUDED: Stacked Washer/Dryer, Dryer, Washer, Refrigerator, Built-in Microwave, Dishwasher, Disposal, Gas Range, Gas Oven BUILDER NAME: Lennar CONSTRUCTION: Stucco, Wood Frame EXTERIOR FEATURES: Other, Balcony FLOORING: Carpet, Tile HEATING: Electric COOLING: HVAC SEER Rating, Central Air, Programmable Thmstat INTERIOR FEATURES: Non-laminate Counter, High Speed Internet, Double Vanity, Master Downstairs, Breakfast Bar, Pantry, 3/4 Bath Master Bdrm LAUNDRY FEATURES: Inside LOT FEATURES: Desert Front # GARAGE SPACES: 2 # CARPORT SPACES: 0 PARKING FEATURES: Garage Door Opener, Direct Access ROOF: Tile STORIES TOTAL: 2 LEGAL DESCRIPTION: LOT 396 HAWES CROSSING VILLAGE 1 AMD MCR 176727 LISTING AGENT: JESSICA D DETTMAN LISTING OFFICE: LENNAR SALES CORP LISTING CONTACT: 480-476-8470
Estimated Monthly Payments
List Price: $423,190 20% Down Payment: $84,638 Loan Amount: $338,552 Loan Type: 30 Year Fixed Interest Rate: 6.5 % Monthly Payment: $2,140 Estimate does not include taxes, fees, insurance.
Request More Information
Property Location: 8149 E PETUNIA AVENUE 1068#1068 MESA AZ 85212
This Listing
Active Listings Nearby
Condo Mania Agent
Angela Covey
Homesmart
Real Estate Agent
Phone: 602-677-9038
You Might Also Be Interested In...
Community: HAWES CROSSING VILLAGE ... Listing 1 of 3
First -- Next -- Previous -- Last
The Fair Housing Act prohibits discrimination in housing based on color, race, religion, national origin, sex, familial status, or disability.
ARMLS Logo indicates a property listed by a real estate brokerage other than Homesmart. All information should be verified by the recipient and none is guaranteed as accurate by ARMLS. Based on inform54. Arizona Regional Multiple Listing Service, Inc. All rights reserved.
Copyright © 2025 Arizona Regional Multiple Listing Service, Inc. All rights reserved.
Information Deemed Reliable But Not Guaranteed. The information being provided is for consumer's personal, non-commercial use and may not be used for any purpose other than to identify prospective properties consumers may be interested in purchasing. This information, including square footage, while not guaranteed, has been acquired from sources believed to be reliable.
Last Updated: 2026-04-09 19:35:24
Tempe Condo Mania







