The Condo Mania Team
MLS: 6981338 $250,000
3 Bedrooms with 2 Baths2301 E UNIVERSITY DRIVE 494#494
MESA AZ 85213MLS: 6981338
Status: ACTIVE
List Price: $250,000
Price per SQFT: $224
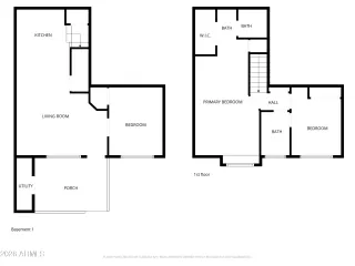
Square Footage: 11183 Bedrooms
2 Baths
Year Built: 1989
Zip Code: 85213
Listing Remarks
Newly refinished kitchen & bathroom countertops! Step into this beautifully refreshed end-unit home, perfectly positioned just steps from the park and only moments from your covered parking for effortless everyday living. Inside, you'll love the fresh paint, brand-new carpeting, updated appliances and more that make the space feel crisp, clean, and move-in ready. 2nd bedroom has direct access to hall bathroom. Unwind at the 2 community pools or hot tub or retreat to the comfort of your own 3-bedroom haven--an affordable home that offers both convenience and tranquility. Whether you're relaxing, entertaining, or simply enjoying the ease of low-maintenance living, this home delivers the ideal blend of comfort and value. Get ready to make this your new happy place.
Address: 2301 E UNIVERSITY DRIVE 494#494 MESA AZ 85213
ARMLS NANCY A. KALLAS of TREASURED REAL ESTATE, LLC
Community: EASTBROOK ... Listing 3 of 3
First -- Next -- Previous -- Last
Condo Mania Agent
Mary Ann Kren
Homesmart
Real Estate Agent
Phone: 480-221-4437
Request More Information
Listing Details
STATUS: Active PROPERTY TYPE: Residential PROPERTY SUB TYPE: Townhouse SPECIAL LISTING CONDITIONS: Owner/Agent LISTING CONTRACT DATE: 2026-02-07 BEDROOMS: 3 LIVING AREA SQ FT: 1118 LIVING AREA SOURCE: Assessor YEAR BUILT: 1989 TAXES: $469 HOA/MGMT CO: Eastbrook Stratford HOA/MGMT PHONE: 480-635-1133 HOA FEES FREQUENCY: Monthly HOA FEES: $223 HOA INCLUDES: Roof Repair, Insurance, Sewer, Maintenance Grounds, Street Maint, Front Yard Maint, Trash, Water, Roof Replacement, Maintenance Exterior COMMUNITY FEATURES: Pool, Community Spa, Community Spa Htd, Near Bus Stop, Playground APPLIANCES INCLUDED: Stacked Washer/Dryer, Dryer, Washer, Refrigerator, Built-in Microwave, Dishwasher, Disposal, Electric Range BUILDER NAME: unknown CONSTRUCTION: Wood Frame, Painted EXTERIOR FEATURES: Playground, Private Yard, Storage FLOORING: Carpet, Laminate HEATING: Electric COOLING: Central Air, Ceiling Fan(s) INTERIOR FEATURES: Walk-in Pantry, High Speed Internet, Upstairs, Breakfast Bar, Vaulted Ceiling(s), Pantry, Full Bth Master Bdrm, Laminate Counters LAUNDRY FEATURES: Inside LOT FEATURES: None, Borders Common Area, North/South Exposure, Corner Lot # GARAGE SPACES: 0 # CARPORT SPACES: 1 PARKING FEATURES: Unassigned, Separate Strge Area, Assigned COMMON WALLS: Two Common Walls, End Unit ROOF: Composition STORIES TOTAL: 2 LEGAL DESCRIPTION: LOT 494 EASTBROOK MCR LISTING AGENT: NANCY A. KALLAS LISTING OFFICE: TREASURED REAL ESTATE, LLC LISTING CONTACT: 480-628-0990
Estimated Monthly Payments
List Price: $250,000 20% Down Payment: $50,000 Loan Amount: $200,000 Loan Type: 30 Year Fixed Interest Rate: 6.5 % Monthly Payment: $1,264 Estimate does not include taxes, fees, insurance.
Request More Information
Property Location: 2301 E UNIVERSITY DRIVE 494#494 MESA AZ 85213
This Listing
Active Listings Nearby
Condo Mania Agent
Angela Covey
Homesmart
Real Estate Agent
Phone: 602-677-9038
You Might Also Be Interested In...
Community: EASTBROOK ... Listing 3 of 3
First -- Next -- Previous -- Last
The Fair Housing Act prohibits discrimination in housing based on color, race, religion, national origin, sex, familial status, or disability.
ARMLS Logo indicates a property listed by a real estate brokerage other than Homesmart. All information should be verified by the recipient and none is guaranteed as accurate by ARMLS. Based on inform54. Arizona Regional Multiple Listing Service, Inc. All rights reserved.
Copyright © 2025 Arizona Regional Multiple Listing Service, Inc. All rights reserved.
Information Deemed Reliable But Not Guaranteed. The information being provided is for consumer's personal, non-commercial use and may not be used for any purpose other than to identify prospective properties consumers may be interested in purchasing. This information, including square footage, while not guaranteed, has been acquired from sources believed to be reliable.
Last Updated: 2026-05-09 04:35:45
Tempe Condo Mania







