The Condo Mania Team
SOLD! MLS: 6562189 $477,600
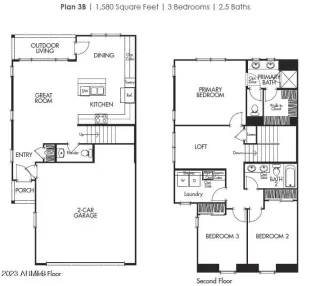
3 Bedrooms with 3 Baths1051 W DIAMONDBACK DRIVE
CHANDLER AZ 85286MLS: 6562189
Status: SOLD
Closed On: 2023-06-22
Sold Price: $477,600
Sold Price per SqFt: $302
Square Footage: 15803 Bedrooms
3 Baths
Year Built: 2023
Zip Code: 85286
Listing Remarks
FINAL OPPORTUNITY AT MARIPOSA IN CHANDLER. Conveniently located in The City of Chandler This Residence 3 of our Towns offers 1,580qft of living space in this a two-story open floorplan with three bedrooms, two and a half bathrooms, great room, kitchen island, upstairs laundry. LOFT and a two-car garage and private enclosed patio space. Residences of Mariposa will enjoy amenities including, pool, spa and gated entrance.
Address: 1051 W DIAMONDBACK DRIVE CHANDLER AZ 85286
ARMLS JUSTYNA KORCZYNSKI of THE NEW HOME COMPANY
Condo Mania Agent
Maria Boetger
Homesmart
Real Estate Agent
Phone: 480-329-5926
Request More Information
Listing Details
STATUS: Closed PROPERTY TYPE: Residential PROPERTY SUB TYPE: Townhouse LISTING CONTRACT DATE: 2023-05-28 CLOSE DATE: 2023-06-22 BEDROOMS: 3 BATHROOMS: 2.5 LIVING AREA SQ FT: 1580 LIVING AREA SOURCE: Builder YEAR BUILT: 2023 TAXES: $4,420 HOA/MGMT CO: AAM, LLC HOA/MGMT PHONE: 602-957-9191 HOA FEES FREQUENCY: Monthly HOA FEES: $226 HOA INCLUDES: Maintenance Grounds, Street Maint COMMUNITY FEATURES: Gated, Community Spa, Community Pool, Playground ARCHITECTURAL STYLE: Other BUILDER NAME: The New Home Company CONSTRUCTION: Stucco, Wood Frame FIREPLACE: None HEATING: Natural Gas COOLING: Programmable Thmstat INTERIOR FEATURES: Granite Counters, Double Vanity, Upstairs, Eat-in Kitchen, Kitchen Island, Pantry LAUNDRY FEATURES: Wshr/Dry HookUp Only LOT FEATURES: Desert Front, Dirt Back # GARAGE SPACES: 2 # CARPORT SPACES: 0 COMMON WALLS: 1 Common Wall ROOF: Other STORIES TOTAL: 2 LEGAL DESCRIPTION: LOT 199 MARIPOSA MCR 152050 LISTING AGENT: JUSTYNA KORCZYNSKI LISTING OFFICE: THE NEW HOME COMPANY LISTING CONTACT: 480-708-8328
Property Location: 1051 W DIAMONDBACK DRIVE CHANDLER AZ 85286
This Listing
Active Listings Nearby
You Might Also Be Interested In...
The Fair Housing Act prohibits discrimination in housing based on color, race, religion, national origin, sex, familial status, or disability.
ARMLS Logo indicates a property listed by a real estate brokerage other than Homesmart. All information should be verified by the recipient and none is guaranteed as accurate by ARMLS. Based on inform54. Arizona Regional Multiple Listing Service, Inc. All rights reserved.
Copyright © 2025 Arizona Regional Multiple Listing Service, Inc. All rights reserved.
Information Deemed Reliable But Not Guaranteed. The information being provided is for consumer's personal, non-commercial use and may not be used for any purpose other than to identify prospective properties consumers may be interested in purchasing. This information, including square footage, while not guaranteed, has been acquired from sources believed to be reliable.
Last Updated: 2026-01-21 04:34:32
Tempe Condo Mania






