The Condo Mania Team
SOLD! MLS: 6517575 $461,209
3 Bedrooms with 3 Baths1127 W DIAMONDBACK DRIVE
CHANDLER AZ 85286MLS: 6517575
Status: SOLD
Closed On: 2023-03-31
Sold Price: $461,209
Sold Price per SqFt: $292
Square Footage: 15803 Bedrooms
3 Baths
Year Built: 2022
Zip Code: 85286
Listing Remarks
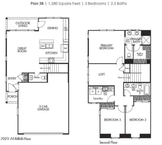
Corner location at the end of the courtyard This QUICK MOVE-IN Residence 3 home offers 1,580 sqft of living space in this a two-story open floorplan with three bedrooms, PLUS LOFT, two and a half bathrooms, great room, kitchen island, upstairs laundry and a two-car garage and private enclosed patio space. All new homes at Mariposa include our EVO home technology which includes whole home WIFI, video doorbell, WIFI Thermostat and garage opener, Smart Entry Lock and Lighting Control. Other included features are GE Stainless Steel Appliances, Moen Pull Down Kitchen Faucet, plus more. Residences of Mariposa will enjoy two gated entrances, amenities including, pool, spa and an outdoor cooking area.
Address: 1127 W DIAMONDBACK DRIVE CHANDLER AZ 85286
ARMLS JUSTYNA KORCZYNSKI of THE NEW HOME COMPANY
Condo Mania Agent
Maria Boetger
Homesmart
Real Estate Agent
Phone: 480-329-5926
Request More Information
Listing Details
STATUS: Closed PROPERTY TYPE: Residential PROPERTY SUB TYPE: Townhouse LISTING CONTRACT DATE: 2023-02-07 CLOSE DATE: 2023-03-31 BEDROOMS: 3 BATHROOMS: 2.5 LIVING AREA SQ FT: 1580 LIVING AREA SOURCE: Builder YEAR BUILT: 2022 TAXES: $3,250 HOA/MGMT CO: AAM, LLC HOA/MGMT PHONE: 602-957-9191 HOA FEES FREQUENCY: Monthly HOA FEES: $226 HOA INCLUDES: Maintenance Grounds, Street Maint COMMUNITY FEATURES: Gated, Community Spa, Community Pool, Playground ARCHITECTURAL STYLE: Other BUILDER NAME: The New Home Company CONSTRUCTION: Stucco, Wood Frame FIREPLACE: None FLOORING: Carpet, Tile HEATING: Natural Gas COOLING: Programmable Thmstat INTERIOR FEATURES: Granite Counters, Double Vanity, Upstairs, Eat-in Kitchen, Kitchen Island, Pantry LAUNDRY FEATURES: Wshr/Dry HookUp Only LOT FEATURES: Desert Front, Dirt Back # GARAGE SPACES: 2 # CARPORT SPACES: 0 COMMON WALLS: 1 Common Wall ROOF: Other STORIES TOTAL: 2 LEGAL DESCRIPTION: LOT 180 MARIPOSA MCR 152050 LISTING AGENT: JUSTYNA KORCZYNSKI LISTING OFFICE: THE NEW HOME COMPANY LISTING CONTACT: 480-708-8328
Property Location: 1127 W DIAMONDBACK DRIVE CHANDLER AZ 85286
This Listing
Active Listings Nearby
You Might Also Be Interested In...
The Fair Housing Act prohibits discrimination in housing based on color, race, religion, national origin, sex, familial status, or disability.
ARMLS Logo indicates a property listed by a real estate brokerage other than Homesmart. All information should be verified by the recipient and none is guaranteed as accurate by ARMLS. Based on inform54. Arizona Regional Multiple Listing Service, Inc. All rights reserved.
Copyright © 2025 Arizona Regional Multiple Listing Service, Inc. All rights reserved.
Information Deemed Reliable But Not Guaranteed. The information being provided is for consumer's personal, non-commercial use and may not be used for any purpose other than to identify prospective properties consumers may be interested in purchasing. This information, including square footage, while not guaranteed, has been acquired from sources believed to be reliable.
Last Updated: 2026-02-16 19:34:49
Tempe Condo Mania






